
Im Herzen vom Sonnendorf Pfalzen realisieren wir unser neues Bauvorhaben Residence Hochrain. Das Projekt sieht nur 8 Wohnungen vor, aufgeteilt auf 3 Etagen, im Untergeschoss befindet sich die Garagen mit Keller. Die Wohnungen sind bestens durchdacht und alle nach Süden ausgerichtet. Auch Anpassungen oder Umänderungen an den Wohnungen können noch in der Bauphase vorgenommen werden. Für ein gutes Gefühl in den eigenen vier Wänden sorgen nachhaltige Materialien, die grossen Räumlichkeiten mit viel Licht und den herrlichen Ausblick .Als hochwertiges Klimahaus Standard A wird das Bauprojekt ausgeführt und voraussichtlich Dezember 2017 fertiggestellt.
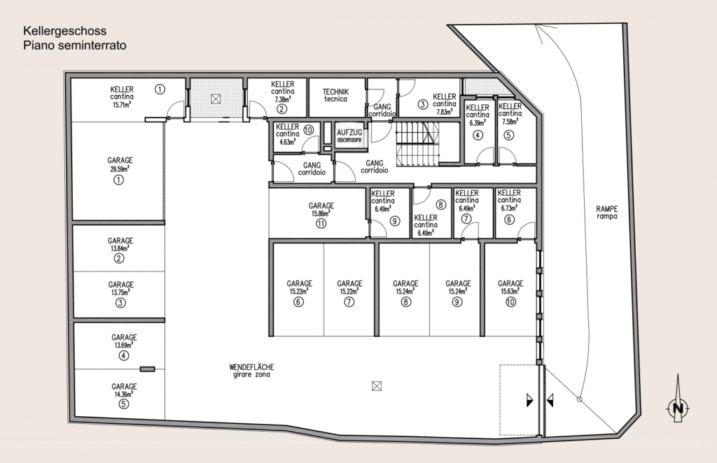
Pläne
Ausstattung
Der sonnige Außenbereich von den Erdgeschosswohnungen ist in Terrassen und Gartenflächen aufgeteilt. Die Terrassen werden mit Bodenplatten verdichtet. Die Grünfläche wird fachmännisch mit Pflanzen und Rasen ausgestattet.
- Fernwärmeversorgung
- Niedrige Kondominium Spesen durch Klimahaus Standard A
- Gärtnerisch gestaltete Außenanlage
- Industrieboden in der Garage
- Tiefgaragentor mit Fernbedienung
- Aufzug von der Garage in die einzelnen Stockwerke
- Kalt– und Warmwasserzähler sowie Kalorienzähler für jede Wohnung
- Fenster und Balkontüren in Holz und Alu mit Dreifachverglasung
- Elektrische Rollläden bzw. Raffstore
- Wohnungseingangstür schallgedämmt und wärmeisoliert
- Energieeffiziente Fußbodenheizung – regelbar in allen Räumen durch Raumthermostate
- Hochwertige Landhausdielen oder Parkettboden in Wohn- und Schlafräumen
- Edle Steine oder Fliesen in Bad und Diele
- Vorgesehene Datenverkabelung in jeder Wohnung
- Videosprechanlage
- Gemeinschaftliche SAT Anlage
- Schließsystem für Wohnung, Keller und Garage
- Jede Wohnung mit Balkon oder Terrasse mit Ausrichtung nach Süden
Zentral gelegen
In unmittelbarer Nähe und in nur wenigen Gehminuten zu erreichen:
- Kindergarten
- Schule
- Gemeinde
- Kirche
- Vereinshaus
- Apotheke
- Lebensmittelgeschäft
- Metzgerei
- Bäckerei
- Restaurants- Bars
Lage







